LAMINAM portselanplaadid (keraamilised plaadid) – praktiline juhend
Lühidalt
LAMINAM on üks maailma tuntumaid portselanplaatide (edaspidi tekstis „keraamilised plaadid“) tootjaid, mis ühendab esteetika, tehnilise vastupidavuse ja keskkonnateadliku tootmise.
Terminitäpsustus: “keraamilised plaadid” on üldmõiste savist ja mineraalidest valmistatud ning põletatud plaatidele. Portselanplaadid on selle alamkategooria – tihedama koostisega, kõrgemal temperatuuril põletatud, väga madala veeimavuse ja suure mehaanilise tugevusega.
FixFas pakub LAMINAM süsteemseid lahendusi fassaadidele, kus oluline on nii tulepüsivus, täpne paigaldus kui materjali kestvus.
Lae alla LAMINAM kataloogid.
Kõik tehnilised materjalid ühes e-kirjas.
Surface Book, Technical Guide, Guide for External Facades ja ANOFIX profiilikataloog, neli materjali, mida iga arhitekt ja projekteerija peaks teadma. Saa need korraga oma e-posti, et töö projektiga läheks kiiremini ja täpsemalt.
Põhiomadused

Mis on LAMINAM?
LAMINAM (asutatud 2001, insener Franco Stefan) on tootja, kes tõi fassaadimaailma uue standardi: tööstuslikul skaalal valmistatud väga suured ja õhukesed portselanplaadid (porcelain slabs).
Esmalt leidsid need plaadid rakenduse arhitektuuri- ja interjööriprojektides, tänaseks on suureformaadilised pinnad levinud ventileeritavatel fassaadidel ja muudes nõudlikes sise- ja välislahendustes.
LAMINAMi tooted on keskkonnasõbralikud, valmistatud kuni 100% looduslikest toorainetest ning 60% taaskasutatud materjalist, mis muudab need taaskasutatavaks ja vähendab keskkonnamõju nii tootmisel kui transpordil.
FixFas pakub LAMINAM lahendusi koos tehniliste DWG/PDF sõlmede, näidiste ja projekteerimistoe abil.
Mõõdud ja paksused
LAMINAM oli esimene tootja, kes valmistas alla 4 mm paksuseid suureformaadilisi plaate. Tänu sellele saab luua kergemaid ja täpsemaid fassaadilahendusi.
Standardmõõdud: 1000×3000 mm kuni 1620×3240 mm.
LAMINAM plaadipaksus:
„Laminam+“ tähistab formaate, kus põhiplaat on tagaküljelt tugevdatud liimitud klaaskiudmatiga.
Soovitus projekteerijale: Kasutage standardmõõte (nt 1620 x 3240 mm) ja planeerige plaadijaotus varakult. Mida vähem lõikeid ja jääke, seda väiksem on m²-kulu ning kiirem paigaldus. 👉 Küsi optimeerimisabi oma projektile
Soovituslikud paksused iga kasutusvaldkonna jaoks.
LAMINAM “twO” – maailma kõige õhem keraamika (2 mm)
LAMINAM “twO” on 2 mm paksune keraamiline pind, mis ühendab kerguse ja mehaanilise tugevuse. Valmistatud 100% taaskasutatud ja taaskasutatavatest materjalidest, sobib see nii fassaadidele kui ka siselahendustesse.
“twO” sobib eriti hästi suurtel pindadel ja minimaalsete vuukidega lahendustes – seinakatted, põrandad, fassaadid, köögitasapinnad ja mööblielemendid.

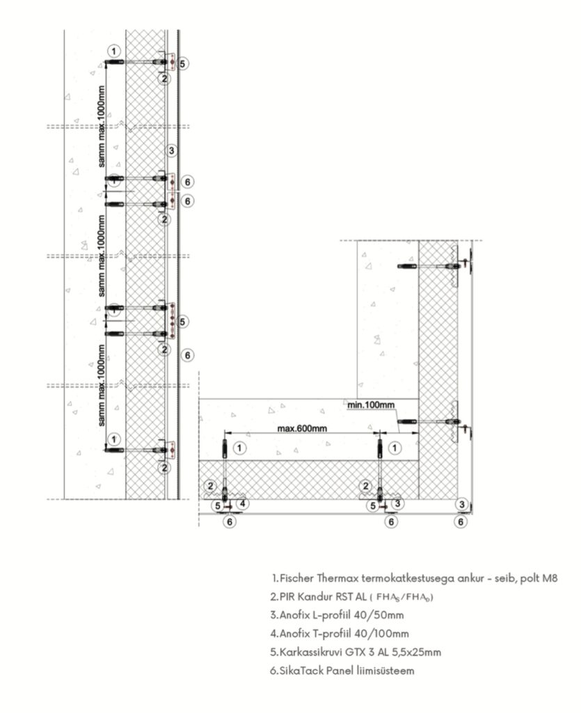
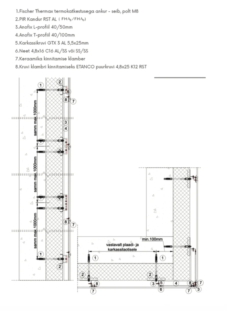
Kinnitussüsteemid – kolm põhilist lahendust
1. Liimimine ventileeritavale karkassile (Sika + Anofix)
Visuaalselt puhas ja tehniliselt tugev lahendus.
LAMINAM plaadid liimitakse Sika liimisüsteemiga Anofix alumiiniumprofiilidele.
Eelised:
- peitkinnitus, ilma nähtavate kruvideta
- kõrge tuule- ja löögikindlus
- sobib uusehitistele ja renoveerimisprojektidele

2. Keraamikaklambrid või needid (nähtav kinnitus)
Kiire ja töökindel.
Projekteerimisel saab arvestada fikseeritud vuugilaiusega ja lihtsa hooldatavusega.

3. Seguliim otse soojustusele
Koostöös Caparoliga pakume lahendust, kus plaat kinnitatakse otse soojustusele. Tegemist on hooldusvabama, mehaaniliselt tugeva alternatiivlahendusega krohvfassaadile.
Vajalikud DWG-d ja juhendid?
Saa need korraga e-postile.
Surface Book, Technical Guide, Guide for External Facades ja ANOFIX profiilikataloog, neli materjali, mida iga arhitekt ja projekteerija peaks teadma. Saa need korraga oma e-posti, et töö projektiga läheks kiiremini ja täpsemalt.
Paigaldussuund ja toon: materjali loodusliku varieeruvuse tõttu paigaldada kõik plaadid (sh ebastandardsed lõiked) ühes suunas, et tagada ühtlane visuaal. Erisuunalisel paigaldusel võib valgus tekitada toonierinevuse mulje.
Tulepüsivus, sertifikaadid, keskkond
LAMINAM on mittepõlev materjal, mis sobib süsteemidesse, kus tulepüsivus on kriitiline.
Kõik plaadid omavad EPD (Environmental Product Declaration) dokumente, mis lihtsustavad LEED/BREEAM sertifitseerimist.
Tulepüsivuse klass määratakse alati süsteemselt koos aluskarkassi ja soojustusega.
- EPD-d on saadaval erinevatele paksustele. See lihtsustab LCA/LEED/BREEAM dokumentatsiooni.
- Hooldus: keraamika on pleki-, hallituse- ja kemikaalikindel
♻️ LAMINAM vähendab fassaadi hoolduskulusid ja pikendab hoone elutsüklit.
AMBIENCE pinnatöötlus – fassaad, mis puhastub ise
AMBIENCE on Laminami bioaktiivne pinnatöötlus, kus titaandioksiid (TiO₂) kantakse kuumalt plaadile. Töötlus nakkub püsivalt ja säilitab tõhususe väga pikalt (testide põhjal kuni ~50 aastat välitingimustes).
Efekt reaalses keskkonnas:
- 150 m² AMBIENCE fassaad = 1000 m² metsa puhastusefekt,
- vähendab NOx heitmeid sama palju kui 11 autot, mis sõidavad päevas 30 km,
- vähendab hoolduskulusid ja hoiab pinna ühtlasena kuni 50 aastat.
See efekt saavutatakse tänu fotokatalüütilisele reaktsioonile, kus päikesevalgus aktiveerib titaandioksiidi (TiO2), mis omakorda lagundab õhusaasteaineid nagu NOx ja muud kahjulikud ained, muutes need ohututeks elementideks (vesi, süsinikdioksiid ja nitraadid).

AMBIENCE-pinnatöötlus annab suurima kasu kohtades, kus on tugev liikluskoormus või sudune õhk, raskesti ligipääsetavad fassaadid, avalikud hooned ning hügieenitundlikud keskkonnad. AMBIENCE töötlusel on ennast puhastav omadus, kus pinnale kogunenud mustus laguneb ning vihmavesi eemaldab selle kergemini. See vähendab hoolduskulusid ja pikendab materjali ilu ning vastupidavust
Parim kasutuskoht:
- linnakeskkond, suure liiklusega tsoonid
- avalikud hooned ja koolid
- raskesti ligipääsetavad fassaadid
Soovid oma hoonele isepuhastuvat fassaadi?
LAMINAM viimistlused ja kollektsioonid
LAMINAM tootevalik hõlmab laia valikut keraamilisi plaate, mis on jaotatud erinevate visuaalsete efektide järgi nagu Wood (puit), Concrete (betoon), Stone (kivi) ja teised. Iga efekt hõlmab mitut kollektsiooni või sarja, mis toovad esile erinevaid tekstuure, värve ja viimistlusi. Materjalidega saab lähemalt tutvuda meie kontoris.
Efektid & kollektsioonid (näiteid):
Kontrollnimekiri projekteerijale
See nimekiri toetab nii arhitekti/inseneri kui ka projektijuhi tööd: aitab süstemaatiliselt kavandada fassaadilahendust, vähendab hilisemaid muudatusi ja hoiab ajakava ning eelarve kontrolli all. Iga punkt juhib tähelepanu detailidele, mis mõjutavad nii fassaadi töökindlust kui ka projekti kulgu.
Saa kõik 4 LAMINAM kataloogi kohe oma postkasti.
Surface Book, Technical Guide, Guide for External Facades ja ANOFIX profiilikataloog – saadame kõik failid automaatselt ühe kirjaga.
Sisesta oma e-post ja kataloogid jõuavad sinu meilile mõne minutiga.
Soovid DWG-d või kiiret kooskõlastust?
Kirjuta info@fixfas.eu või täida vorm.






























































